logo

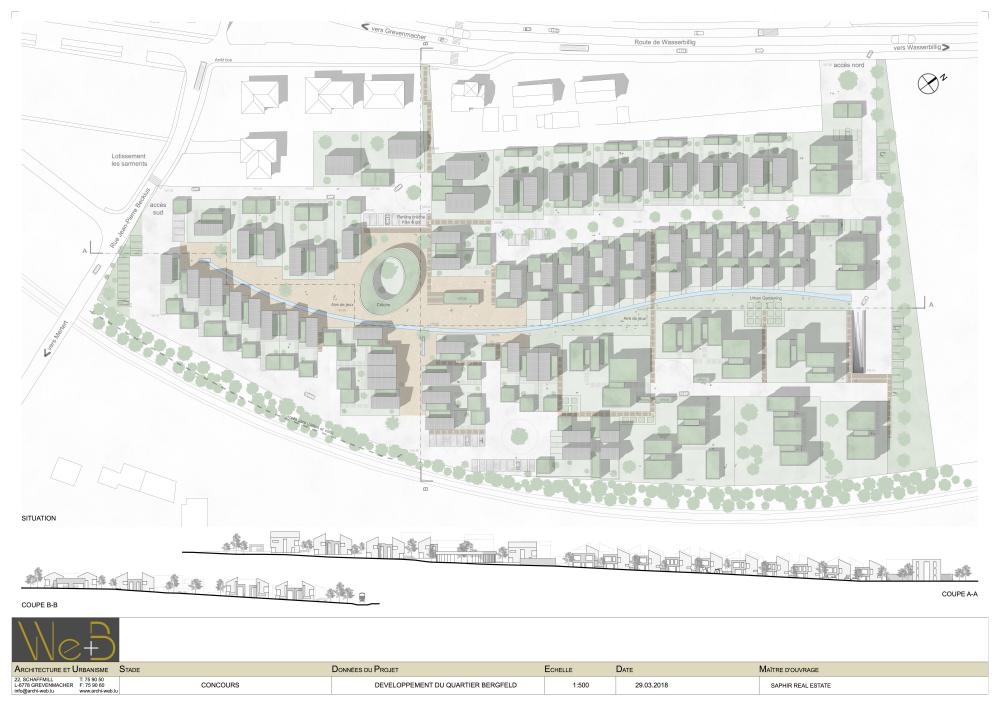
 PAP housing estate in Mertert

 

2018

LOTS: 158

area: 42,44 ha 

competition

>            x

>            x