forma architectes sàrl : contact
selected projects
house building
residential building
functional building
public building
current projects
competition
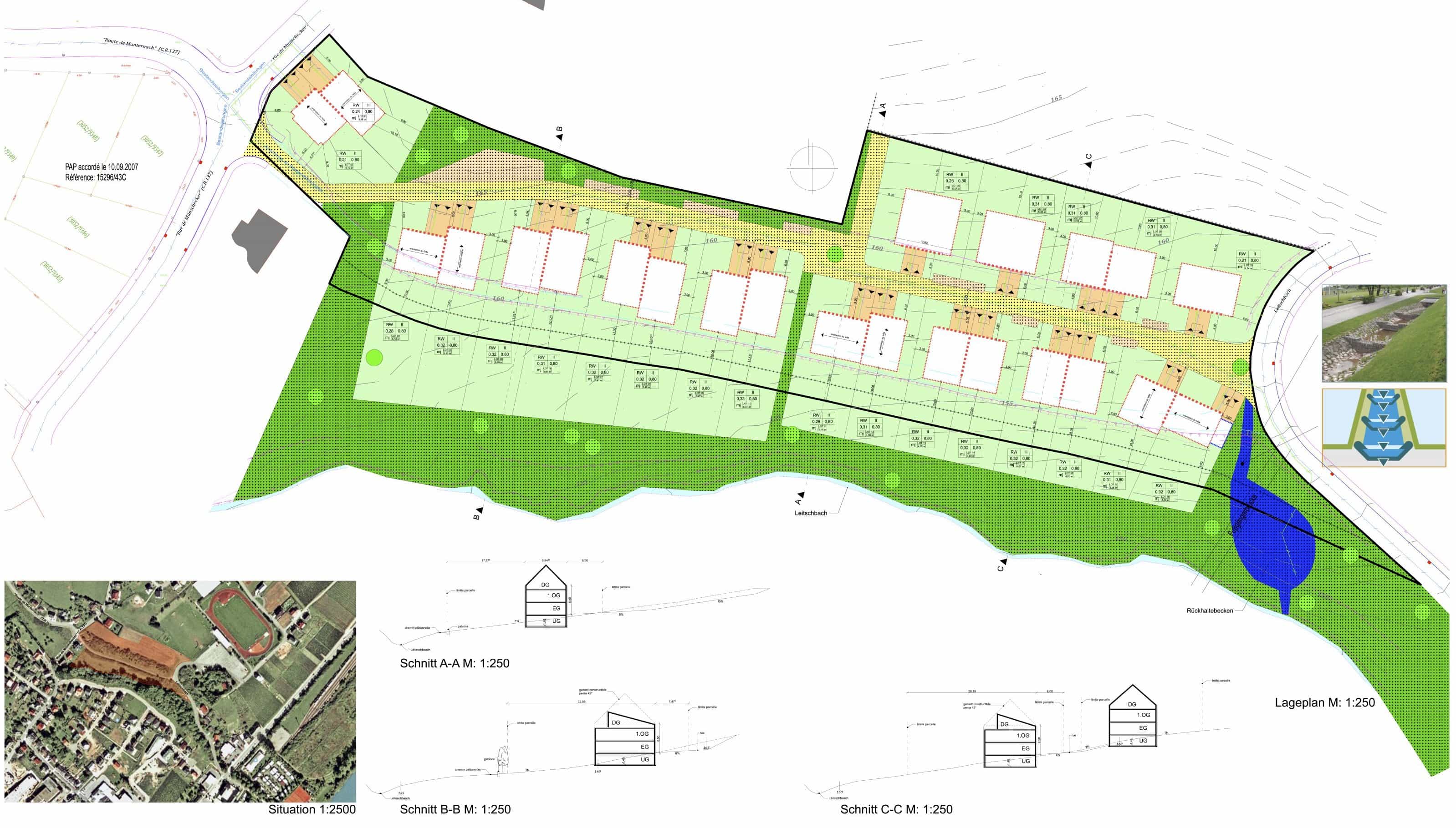
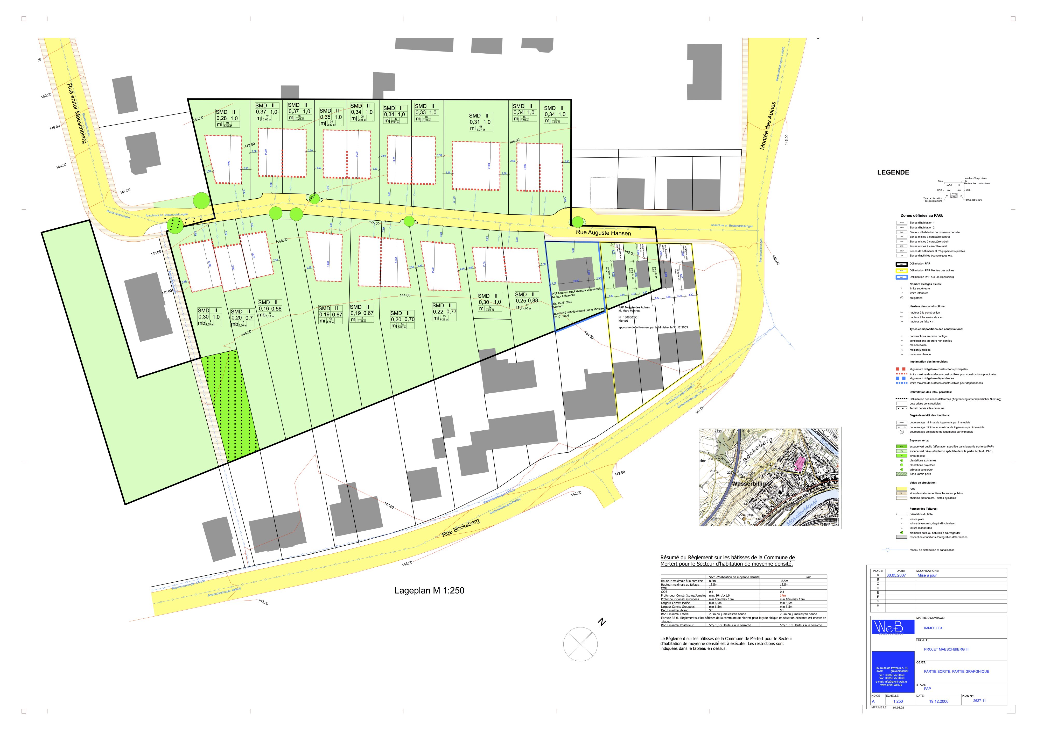
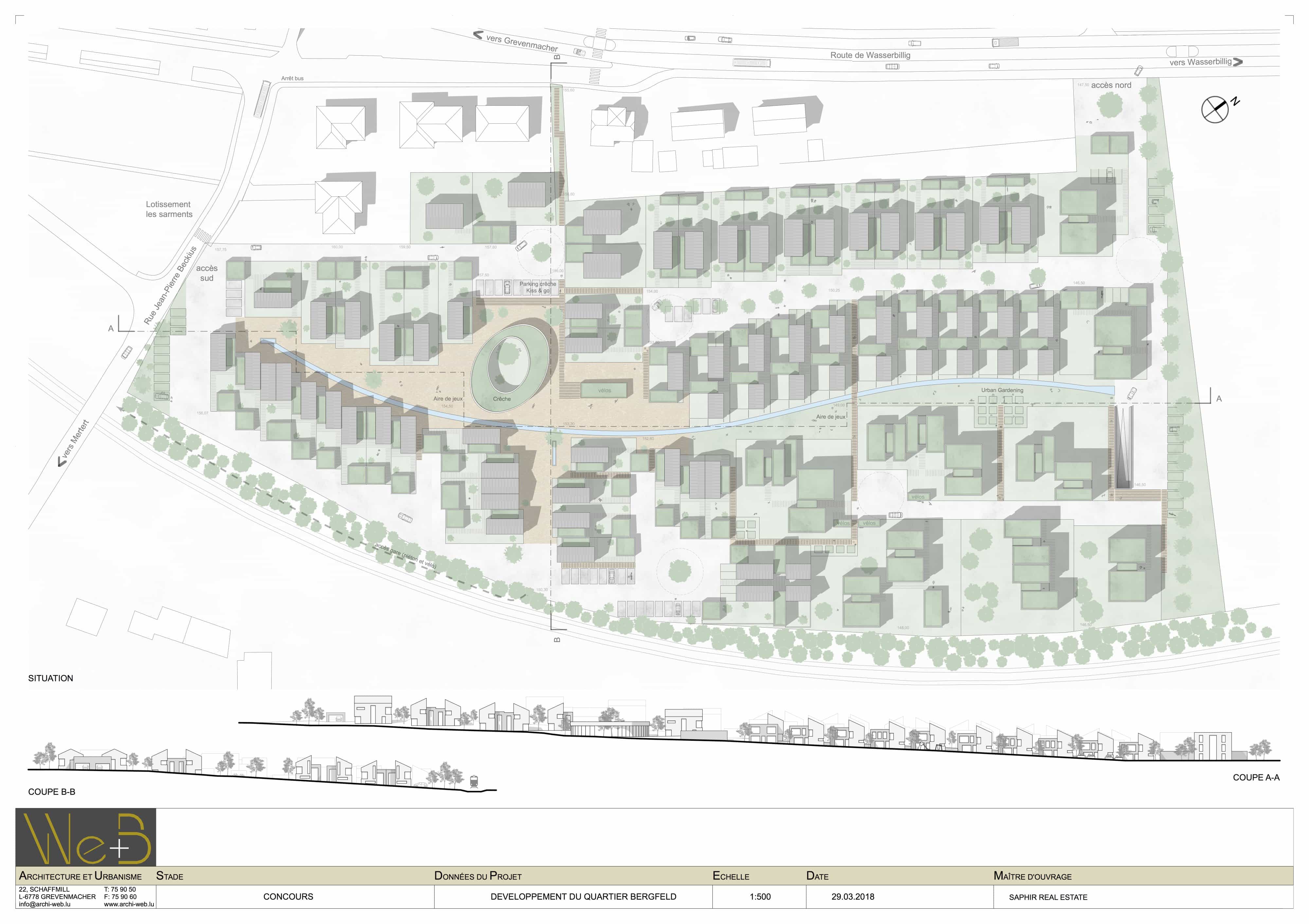
urban
design
news & awards & publications
team
jobs
Zur Zeit stellen wir keine neuen Mitarbeiter ein
Nous ne recrutons pas de nouveaux collaborateurs pour le moment.
We are not currently hiring new employees.
social media